ZHUOXIN FENCE
INSTALLATION INSTRUCTIONS
1. PREPARE FENCE LAYOUT
STEP 1
Locate the boundary lines to your property.

STEP 2
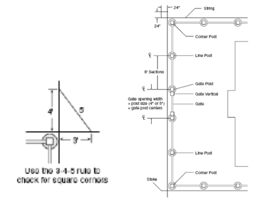
Drive stakes into the ground along the property line and stretch a string between each stake. Be sure to extend the string about 24” beyond the property line (Fig.1). It is recommended that all posts be set approximately 6” inside of the property line so that concrete footings do not encroach onto the adjoining property.
STEP 3
Make the location of each terminal post with a stake (corner, end and gate posts are called terminal posts.) When determining the position of the gate posts, refer to Privacy Gate section for actual gate opening.
2. SETTING TERMINAL POSTS
Although post depth and hole diameter will be determined by local weather and soil conditions, holes for terminal posts and line posts are typically dug 10” diameter and 30” deep with sloped sides (Fig.2). Post holes should be min. 10″ in diameter for standard 4″ x 4″ posts and 12″ in diameter for 5″ x 5″ posts. Set posts in concrete to a min. depth of 22″.
STEP 1
Dig all terminal post holes.
SET ALL TERMINAL POSTS IN CONCRETE.
STEP 2
Position the post in the hole. The posts should be centered in the hole and must be square with the fence line so that when the rails are inserted into the posts they will parallel the string line. Check the post on two adjacent sides with a carpenter’s level and adjust as necessary to make sure it is plumb. The fence height above grade is determined at this time as well.
STEP 3
Pour concrete around post; fill to 2” below ground level. Once the concrete is completely dry, fill the balance of the hole with dirt.
3. LOCATING AND SETTING LINE POSTS
STEP 1
After the terminal post footings have hardened enough for the posts to remain stable, stake and stretch a string line taut across the tops of the posts to mark the desired height of the line posts (Fig.3).

STEP 2
Working along the string line, stake out the position of all line posts.
STEP 3
Dig all line post holes.
STEP 4
Set all line posts as described in section 2, ‘SETTING TERMINAL POSTS’, Step 1 and Step 2.
4. INSTALLING RAILS
Note: The design of the fencing system must take into consideration the expansion or contraction of the profiles caused by temperature changes. A minimum distance of 1/2” between rails is required to allow for expansion. A minimum distance of 1/4” between notches or clips and the inside wall of the post is required to allow for contraction.
Rails clips: Insert rail clips into both ends of the rails before inserting rails into posts. If trimming rails is required, drill a 1/2” hole at cut ends to accept the rail clip.
Rails: Insert bottom rail, left side first, into routed post as far as it will go, then slide right side of rail into other post, fully engaging the clip. Work your way up, repeating this step, until all rails in each section are installed.
Optional Design: If a 2-Rail design is desired, cut the posts.

5. REINFORCE GATE POSTS
Install hinges and latch prior to pouring concrete. Reinforce hinge and latch posts with 2-6’ pieces of #4 rebar.
Tape off ends of rails that will be joining the gate posts-this will prevent concrete from filling rails.

Pour concrete into posts, tamping occasionally to remove air pocket.
6. ATTACH THE POST CAPS
Glue caps onto the posts with a UV-rated, “hot glue” classified PVC adhesive.

7. CLEAN UP
Clean PVC material as necessary with a non-abrasive (or slightly abrasive) mild biodegradable soap and soft plastic scouring pad. Rinse thoroughly with clean water to remove dirt and soap.





